Description
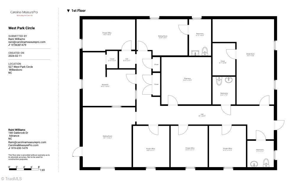
Exceptional opportunity to own a well maintained brick professional office building ideally located near the hospital and surrounded by other established medical and professional businesses. This high-demand location offers excellent visibility, convenience, and accessibility for patients and staff alike. This is currently tenant occupied by a stellar tenant, making this a strong investment opportunity with immediate income potential. The property features an attractive brick exterior for professional curb appeal, parking in front for clients and separate rear parking for staff, a welcoming waiting room/reception area, several private offices, a spacious break room, 3 bathrooms. This property offers the perfect blend of location, functionality, and investment stability. Whether you’re expanding your portfolio investment or seeking a medical or other business professional office for yourself, this property checks all the boxes.
-
0BEDS
-
N/AACRES
-
0BATHS
-
01/2 BATHS
School Ratings & Info
Description
Exceptional opportunity to own a well maintained brick professional office building ideally located near the hospital and surrounded by other established medical and professional businesses. This high-demand location offers excellent visibility, convenience, and accessibility for patients and staff alike. This is currently tenant occupied by a stellar tenant, making this a strong investment opportunity with immediate income potential. The property features an attractive brick exterior for professional curb appeal, parking in front for clients and separate rear parking for staff, a welcoming waiting room/reception area, several private offices, a spacious break room, 3 bathrooms. This property offers the perfect blend of location, functionality, and investment stability. Whether you’re expanding your portfolio investment or seeking a medical or other business professional office for yourself, this property checks all the boxes.
Copyright 2026 Triad MLS, Inc. All rights reserved. IDX information is provided exclusively for personal, non-commercial use, and may not be used for any purpose other than to identify prospective properties consumers may be interested in purchasing. Information is deemed reliable but not guaranteed. This site will be monitored for ‘scraping’ and any use of search facilities of data on the site other than by potential buyers/sellers is prohibited. All Sale data is for informational purposes only and is not an indication of a market analysis or appraisal. Properties marked with the Triad MLS, Inc. icon are provided courtesy of the Triad MLS, Inc.’s, Internet Data Exchange Database. Data last updated 2026-03-12T23:30:39.553.
Listing information © 2026 Triad MLS, Inc. All rights reserved. Listing provided courtesy of Carolina Realty ERA Live Moore: . Information deemed reliable but not guaranteed.